Description
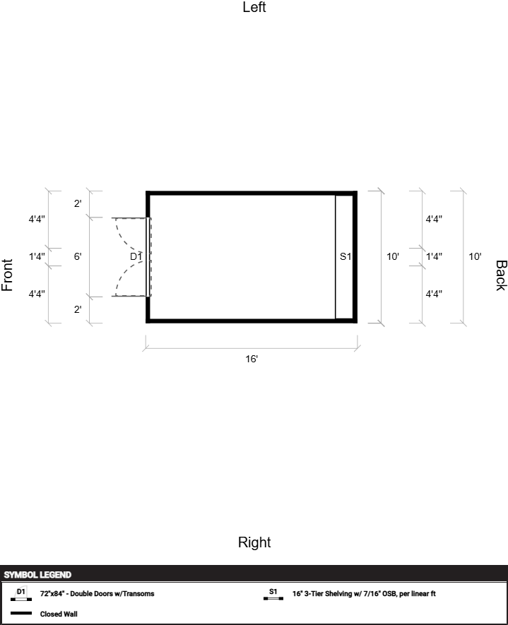
Size: 10′ x 16′
Brand: Wild Cherry
Style: Painted
Model: Utility
Walls: Chestnut Urethane / LP SmartSiding
Trim: Beige
Roof: Rust (Crinkle Finish) / Metal
Features: Double Entry Doors w/ Transom Windows, 8′ TALL Walls, 3-Tier OSB Shelving (16″ deep), LP SmartSide Siding (50 Year Warranty)











Reviews
There are no reviews yet.